Magazyn 194m na wynajem w budynku ogrzewanym - Bielany - trasa S7

Warszawa, Bielany

6 591 PLN

Numer oferty643
Typ transakcjiWynajem
Cena6 591 PLN
Powierzchnia193.85 m2
Cena za m234 PLN / m2
Typ obiektumagazyn
Magazyn 194m na wynajem w budynku ogrzewanym - Bielany - trasa S7 (Warszawa, Bielany)

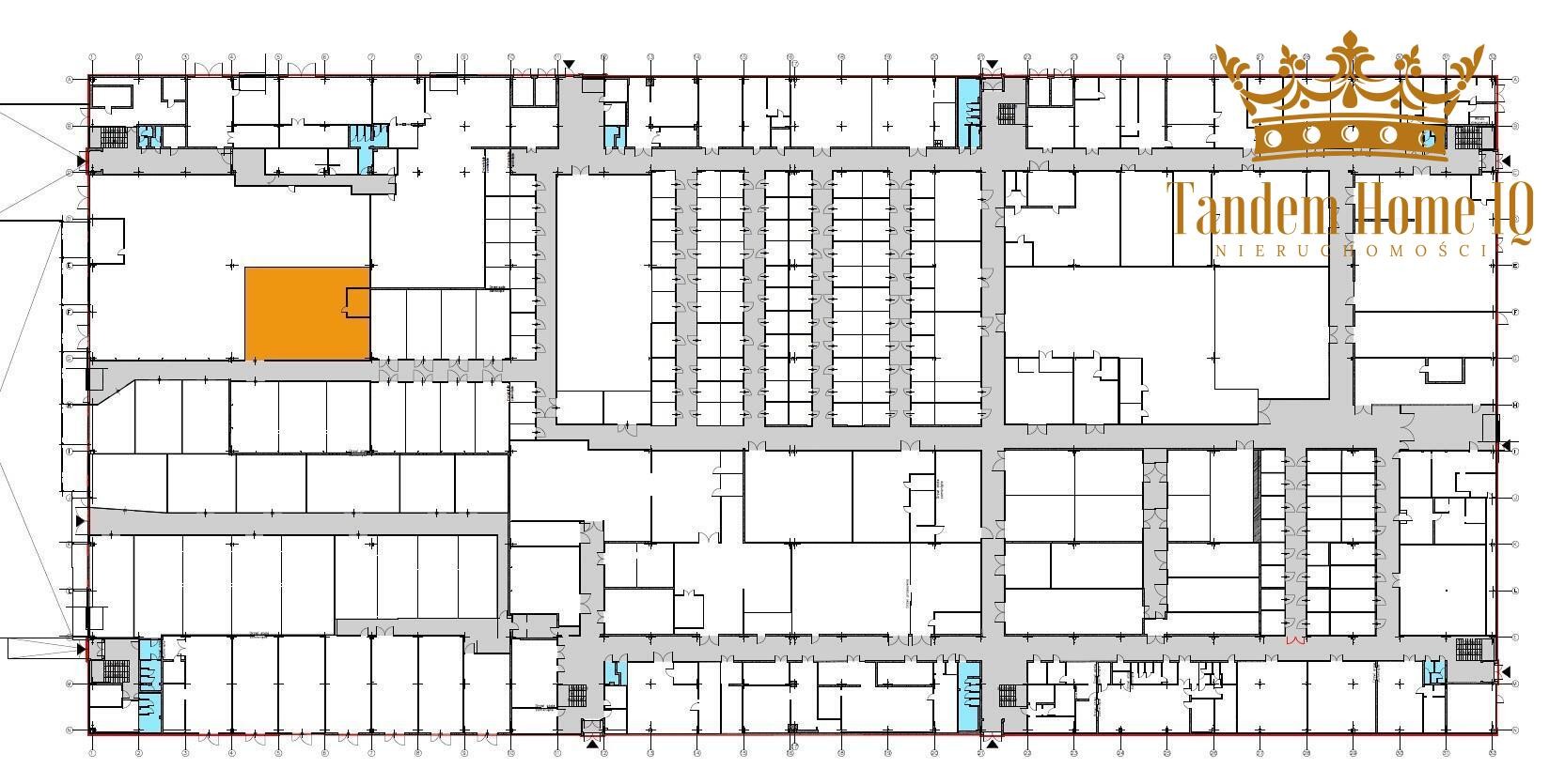
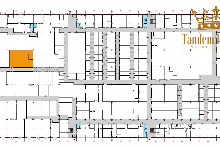
Agencja nieruchomości komercyjnych Tandem Home IQ oferuje do wynajęcia przestrzeń magazynową o pow. 193,85 m2 z małym pomieszczeniem biurowym.
Lokalizacja to warszawskie Bielany, niedaleko metra Młociny i trasy S7.

Informacje ogólne:
- powierzchnia całkowita 193,85 m2 jak na zdjęciach,
- małe dodatkowe pomieszczenie np. na biuro,
- wydzielona przestrzeń w ramach budynku nr 6 jak na zdjęciach,
- przestrzeń sąsiadująca z innymi podmiotami,
- bez dostępu do wody w przestrzeni magazynu,
- na terenie części wspólne toalety,
- cały budynek ogrzewany,
- dużo miejsc parkingowych w okolicy.

Przeznaczenie:
- magazyn, pakowanie, przechowywanie suche, składowanie inne.

Warunki wynajmu:
Czynsz najmu: 34,00 zł netto/m²,
Czas trwania umowy: do ustalenia,
Kaucja: wysokość brutto 3-miesięcznych opłat (czynsz, koszty operacyjne, energia elektryczna i media),
Koszty operacyjne: 16,61 zł netto/m²,
Energia elektryczna: licznik,
Ogrzewanie: (zaliczka płatna cały rok): 1,01 zł netto/m² ,
Korzystanie z toalet: 25 zł netto/m-c od osoby stale przebywającej na powierzchni,
Łączna suma czynszu, kosztów operacyjnych i ogrzewania: 10 006,54 zł netto/m-c.

Rygor egzekucji z art. 777,
Wjazdy na teren do 1h - gratis,
Parkowanie stałe:
samochód osobowy - 180 zł netto/m-c,
bus - 410 zł netto/m-c,
samochód ciężarowy - 525 zł netto/m-c .

Lokalizacja:
Trasa S7 - 3,6 km
Metro Młociny - 1,5 km
Galeria Młociny - 2,1 km
Arkadia - 6,3 km
liczne przystanki tramwajowe i autobusowe - 450m


Zapraszamy na prezentację lokalu:
Aneta Pałgan tel: 730981353
Izabela Zudzin-Wiśniewska tel:501040740


Treść niniejszego ogłoszenia nie stanowi oferty handlowej w rozumieniu Kodeksu Cywilnego.
Oferta wysłana z programu IMO dla pośredników.
Warszawa, Bielany

Kontakt